微自然的小坪數台中室內裝潢/住宅設計重點
每位屋主都渴望擁有一個既能展現個性、又能滿足生活需求的理想居所。無論是年輕夫妻尋求溫馨的家庭空間,還是獨立個體希望擁有專屬個性的居所,微自然深知這些需求,並在每一個設計案中,以屋主的生活方式與喜好為核心,量身打造獨特的空間。
微自然致力於創造真正屬於屋主的個性化空間,提供新竹/台中小坪數室內裝潢的服務,無論是三房兩廳、二房一廳的室內裝潢,我們都會根據不同的格局進行巧妙改造,讓空間的功能性與美感達到完美平衡。
如何在小坪數中創造舒適且實用的居住環境
在當前房價持續攀升的情況下,許多首購族選擇從小坪數的住宅開始築巢。然而,如何在有限的空間中,達到高效利用、避免雜亂與壓迫感,成為許多首購族朋友們最常提出的室內裝潢問題。
微自然憑藉多年在新竹及台中室內裝潢經驗,專注於解決小坪數住宅的挑戰。我們針對常見的三房兩廳、二房一廳的住宅,已發展出一套成熟的設計流程,涵蓋從動線規劃、空間佈局、收納強化到材質與色調的選擇,皆有系統地進行規劃,確保每一個角落都能被有效利用。
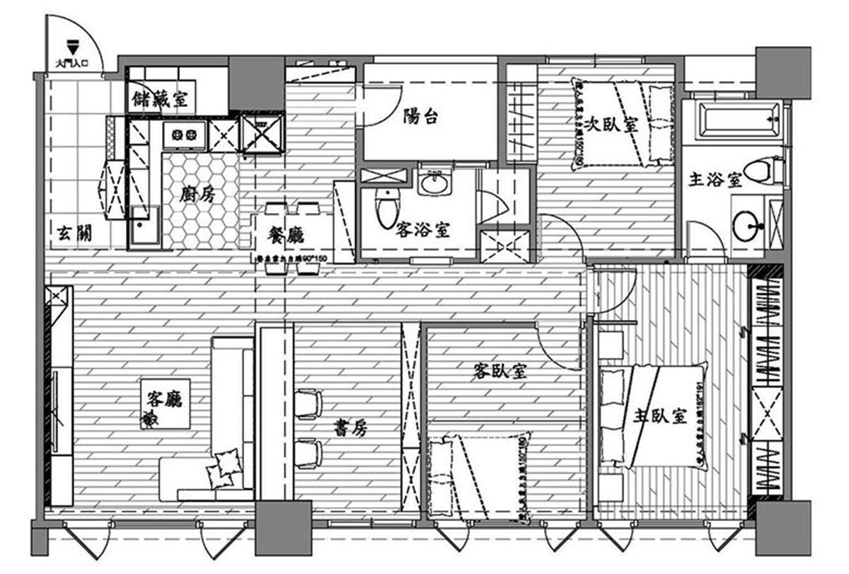
以下便以坪數30坪的住宅為例,將微自然打造小坪數住宅的設計重點歸納如下:
※ 本案例平面圖
流動式的平面布局
小坪數住宅受限於空間太小,傳統上的客廳、餐廳與廚房,甚至是臥室領域,如果都用實牆區隔,會讓使用者感覺室內空間更為狹小與壓迫。微自然擅長將開放式書房或開放式廚房納入小坪數住宅的平面規劃之中,藉由地坪材質、矮牆或矮櫃、玻璃格屏、家具或裝飾等將不同的空間功能區分出來,讓光線與空氣自由的流動於空間之中,自然就有明朗開闊的空間效果。


以玻璃隔屏隔間與六角磚的廚房地坪設計,讓餐廚空間不顯得壓迫擁擠。


開放式書房設計,讓陽光和空氣能自由在公共空間流動。
善用鏡面材質與燈光


狹小的玄關或光線無法穿透的空間,可以透過反射的鏡面櫃體,搭配燈光設計,讓空間放大、減少壓迫感。玄關運用鏡面鞋櫃與玻璃隔屏設計,減少狹長型空間的壓迫感
明亮的淺色調
小坪數住宅建議選擇明亮的淺色系做為空間主要的色調,讓空間顯得寬敞舒適,而濃郁或深沉的顏色則可局部運用,在視覺上做出趣味的變化。如果整體空間都使用深色系或灰黑色調,容易在視覺上讓空間有較小的錯覺,整體空間以白色與淺木色系作為主色調,局部搭配濃郁的藍色矮牆。


沿牆或梁柱下的收納空間,與絕對不能少的儲藏室規劃
小坪數住宅的收納要足夠,設計師必須縝密思考空間的有效利用,因此在樑下、樓梯下這些高度不足有壓迫感的死角,或是不影響開放空間流動原則的柱子旁與牆邊,微自然認為最適合規劃為收納櫃。
部分小坪數住宅,往往有惹人煩惱的大樑或畸零空間,這時候順應這些先天條件配置為小家庭必備的儲藏室,儲藏室內部上方配置置物層板,內部下方則配置行李箱和大型家電的收納空間,是微自然設計師常用的設計手法喔。
玄關入口處側邊配置儲藏室,可以收納行李箱等大型物品。



